Управление качеством как резерв повышения эффективности поставок угольной продукции потребителям Крайнего Севера
В.И. Федоров, В.Л. Гаврилов, Н.С. Батугина
Институт горного дела Севера им. Н.В. Черского Сибирского отделения Российской академии наук, г. Якутск, Российская Федерация
Russian Mining Industry №4S / 2025 p. 146-151
Резюме: В статье раскрыты условия отработки угольных месторождений Крайнего Севера и дана краткая характеристика формируемых цепочек поставок угольной продукции на примере Харбалахского месторождения каменного угля. Проведены натурные наблюдения цепочки поставки угля в забое, на складах и котельных, их ситовой анализ крупности, которые показали, что при хранении на открытых площадках в теплый период года наблюдается резкое увеличение (до 40%) выхода угля мелких классов крупности (–10 мм), которые далее при перевозке подвержены интенсивному выдуванию с последующими потерями при слоевом сжигании. Предложены геотехнологические и организационные мероприятия для улучшения управления качеством и снижения потерь угольной продукции в цепочках добычи и поставок потребителям, в частности, использовать технологическую схему раздельной выемки угля из сближенных пачек пластов, различные теплоизоляционные материалы для экранирования хранимого в штабелях угля, сортировку топлива по крупности и его фасовки в мягкую тару.
Ключевые слова: угольная продукция, Крайний Север, труднодоступные районы, добыча угля, поставка угля, энергетическая безопасность
Благодарности: Работа выполнена в рамках государственного задания Министерства науки и высшего образования Российской Федерации (тема № FWRS-2025-0047, ЕГИСУ НИОКТР №125100124344-7).
Для цитирования: Федоров В.И., Гаврилов В.Л., Батугина Н.С. Управление качеством как резерв повышения эффективности поставок угольной продукции потребителям Крайнего Севера. Горная промышленность. 2025;(4S):146–151. https://doi.org/10.30686/1609-9192-2025-4S-146-151
Информация о статье
Поступила в редакцию: 02.07.2025
Поступила после рецензирования: 18.08.2025
Принята к публикации: 25.08.2025
Информация об авторах
Федоров Владислав Игоревич – научный сотрудник, Институт горного дела Севера им. Н.В. Черского Сибирского отделения Российской академии наук, г. Якутск, Российская Федерация; e-mail: Адрес электронной почты защищен от спам-ботов. Для просмотра адреса в вашем браузере должен быть включен Javascript.
Гаврилов Владимир Леонидович – кандидат технических наук, ведущий научный сотрудник, Институт горного дела Севера им. Н.В. Черского Сибирского отделения Российской академии наук, г. Якутск, Российская Федерация; https://orcid.org/0000-0002-2401-455X; e-mail: Адрес электронной почты защищен от спам-ботов. Для просмотра адреса в вашем браузере должен быть включен Javascript.
Батугина Наталья Сергеевна – доктор экономических наук, главный научный сотрудник, Институт горного дела Севера им. Н.В. Черского Сибирского отделения Российской академии наук, г. Якутск, Российская Федерация; https://orcid.org/0000-0002-1367-9062; e-mail: Адрес электронной почты защищен от спам-ботов. Для просмотра адреса в вашем браузере должен быть включен Javascript.
Введение
Решение вопроса устойчивого обеспечения энергетической безопасности населения, организаций и предприятий труднодоступных районов Крайнего Севера является социально и экономически важным. Сложившаяся практика снабжения потребителей центральных районов РС (Я) энергетическим углем для слоевого сжигания по сложной (автомобильный и речной транспорт, в том числе сезонный) и долговременной (до 1,5 лет) логистике с многочисленными перевалками ведет к значительным количественным и качественным потерям твердого топлива в цепочках поставок и негативным последствиям, связанным с его несвоевременной доставкой.
В центральной и арктической зоне Якутии основные покупатели рассредоточены по большим территориям с удалением на значительные расстояния друг от друга и от предприятий, снабжающих их твердым топливом [1–3]. На его завоз, включая досрочный, ежегодно выделяются огромные средства. Доля транспорта в стоимости угля на месте потребления может достигать 70–75%. Дополнительные сложности связаны со сравнительно небольшими объемами используемого топлива малочисленными потребителями, расположенными или проживающими в основном в мелких населенных пунктах. Эти особенности интенсивно проявляются в работе цепочек поставок угля, действующих на базе разрезов центральной и арктической Якутии.
Формирование качества угольной продукции для потребителей на добывающих предприятиях не всегда осуществляется с полным учётом особенностей сырьевой базы, технологических и организационных возможностей разрезов, специфики их взаимодействия с другими звеньями цепочек, потенциала используемых для выработки тепловой энергии технологий сжигания [4; 5]. Для повышения энергетической безопасности и экономической эффективности добычи угля и поставок готовой угольной продукции необходимо выявление дополнительных резервов. Они могут быть связаны с: совершенствованием используемых геотехнологий [2; 3; 6]; дифференцированным подходом к улучшению функционирования цепочек добавленной стоимости с участием добывающих предприятий и учетом их специфики при условии более полного учёта требований реальных или потенциальных потребителей [7]; снижением общих потерь топлива и обеспечением с применением ряда принципов ресурсосберегающего уровня его качества, трансформирующегося при ведении горных работ на разрезах и после его отгрузки [8; 9].
Скорректированные на основе новых результатов подходы к совершенствованию порядка ведения добычных работ и дополнительной подготовки угля к поставкам могут и должны способствовать его более эффективной добыче и последующему потреблению.
Методы и материалы
Теоретической основой исследования, посвященного изучению формируемых угольных потоков Харбалахским разрезом, типичным для центральной Якутии, послужила методология системных исследований управления качеством угольной продукции при поставках потребителям [6; 10; 11]. В процессе работы использовались следующие методы и приемы: анализ нормативно-методической документации и результатов исследований по теме; научное обобщение; натурные наблюдения с оценкой характера изменения свойств добытого и сжигаемого угля; технический и ситовой анализ отобранных проб на разрезе, складах, в котельных, оценка экономической эффективности предлагаемых мероприятий. Был учтен опыт работы Кангаласского, Джебарики-Хайинского и Мироновского разрезов, также расположенных в центральной Якутии, а также ранее полученные авторами результаты изучения особенностей их работы в составе действующих региональных цепочек поставок и сжигания угольной продукции.
В настоящее время потребности центральных районов Якутии в угле обеспечивают четыре разреза. Они добывают топливо марок Д и Б3 с низшей теплотой сгорания 16,0–22,7 МДж/кг и невысоким содержанием серы. По Государственному балансу все предприятия обеспечены балансовыми запасами, находящимися в распределенном и нераспределенном фондах, на длительный срок (табл. 1).
Таблица 1 Параметры отрабатываемых угольных месторождений центральной Якутии
Table 1 Parameters of coal deposits mined in central Yakutia 
При ведении горных работ используются достаточно простые технологии и средства механизации, а управлению качеством добываемого угля и отгружаемой продукции уделяется недостаточно внимания [2; 3;5].
Разрез АО «Телен» с 1967 г. отрабатывает Харбалахское угольное месторождение, расположенное в 47 км от п. Ытык-Кюель и в 310 км от г. Якутска. Предприятие связано круглогодичной дорогой с федеральной трассой «Колыма».
Выпускаемая угольная продукция, имеющая устойчивый спрос на внутреннем рынке Республики Саха, представлена маркой угля Д (зольность – 13,2%, массовая доля серы – 0,1–1,2%, низшая теплота сгорания – 21,80 МДж/кг, влажность – 15,6%). Основным потребителем угля выступает ГУП «ЖКХ РС (Я)», осуществляющее производство тепловой энергии котельными и обеспечивающее ею нужды шести центральных районов Якутии. Участок имеет простое геологическое строение с почти горизонтальным залеганием пласта с выдержанным качеством угля, двумя пачками и породным прослоем между ними.
АО «Телен» имеет достаточно устойчивое финансовое положение. Рост выручки от реализации в последнее время связан с увеличением объёма реализации угля (+17,9%) и ростом цены на отгружаемую продукцию (+79,4%). Темп увеличения затрат ниже темпа роста выручки от реализации. Предприятие по основной деятельности (добыча угля) работает с чистой прибылью (табл. 2).
Таблица 2 Основные показатели деятельности АО «Телен» за 2018–2024 гг.
Table 2 Key performance indicators of TELEN JSC for 2018–2024 
В настоящее время поставки угольной продукции Харбалахского месторождения осуществляются из забоев или складов разреза до котельных потребителей автомобильным транспортом грузоподъемностью до 40 т с выраженной сезонной динамикой и расстояниями доставки до 200 км, реже 300 км. До 90% годового объема добычи приходится на отопительный сезон (октябрь–апрель). С мая по сентябрь небольшая часть угольной продукции хранится в штабелях на промплощадке и отгружается при формировании спроса, сглаживая сезонные колебания.
Рис. 1 Крупность угля в забое в холодный период года: а – в автотранспорте, б – в навале (ячейки решётки 300*300 мм)
Fig. 1 Coal particle size in the mine during the cold seasons: (а) transported by motor vehicles, (б) bulk (the mesh size of 300*300 mm)
При буровзрывном способе рыхления мерзлых угольных пластов криолитозоны в ряде случаев формируются значительные (до 70–80%) объемы кусков угля крупностью 500–1000 мм и более при требуемом техническими условиями уровне не более 300 мм (рис. 1). Такая ситуация ведёт к необходимости выполнения операций по вторичному дроблению на разрезе или у потребителя, которые, как правило, выполняются вручную. В дополнение к этому потребитель на месте вынужден выделять из угольной массы различные по крупности породные включения, свидетельствующие о повышенном уровне разубоживания при ведении добычных работ.
В экстремальных климатических условиях Якутии интенсивность окисления и выветривания энергетического угля, сроки его хранения без значимого ухудшения технологических свойств зависят от продолжительности и начала наступления минусовых и положительных температур, интенсивности выпадения осадков, уровня солнечной активности, степени углефикации и технологии складирования.
Поставка основных объемов угольной продукции в холодный период года имеет при наличии ряда осложняющих работу цепочек поставок факторов и определенные преимущества. Они связаны с тем, что процессы окисления добытого мерзлого угля резко замедляются, сохраняя свое природное качество при минимальных изменениях гранулометрического состава при хранении [12–14]. Топливо остается кусковатым, что делает его более пригодным для слоевого способа сжигания.
Результаты и их обсуждение
Для оценки степени изменения свойств добытого угля были проведены натурные наблюдения, отбор механизированным (погрузчик) и ручным способами проб угля в забое, на складах разреза и ряда районных котельных, их ситовой анализ по крупности. Визуальные наблюдения и выполненный гранулометрический анализ показали, что при хранении на открытых площадках в теплый период года наблюдается резкое увеличение (до 40%) выхода угля мелких классов крупности (–10 мм), которые далее при перевозке подвержены интенсивному выдуванию с последующими значительными практическими потерями при широко применяемом слоевом сжигании (рис. 2).
Рис. 2 Визуальные изображения угля: а – в забое; через 3–4 мес хранения на складах разреза; б – верхней пачки пласта; в – нижней пачки пласта; г – на складе котельной разреза
Fig. 2 Visual representations of coal: а – at the mine face; after 3–4 months in the strip mine storage; б – in the upper seam band; в – in the bottom seam band; г – in the storage of the strip mine boiler plant
Согласно опубликованным данным при таком способе утилизации использование рядового угля по сравнению с сортовым ведет к его значительному перерасходу. Сортового угля для перевозки требуется по массе до 1,6–1,7 раза меньше при снижении расхода топлива для выработки энергии в 1,3–1,5 раза. Удельный расход угля в котлах со слоевым сжиганием увеличивается на 0,2–0,9% пропорционально увеличению на 1% содержания в угле классов менее 10 мм. Это относится и к новому оборудованию, и к эксплуатируемому длительное время.
Рис. 3 Гранулометрический состав угля: а – в забое; б – на складах разреза и котельной №18 п. Харбалах
Fig. 3 Particle size distribution of coal: а – at the mine face; б – in the storages of the strip mine and Boiler Plant No.18 of the Kharbalakh settlement
Структура крупности угольной продукции, размещаемой в теплое время на складах разреза, изменяется в худшую сторону (рис. 3). Объём угля достигает 10–14 тыс. т при площади 3,5 тыс. м² и высоте штабелей в 3–4 м. Для начала отопительного сезона в августе–октябре поставки топлива потребителям осуществляются именно с этих хранилищ. Сравнительно небольшие объёмы продукции хранятся на территории котельных.
Проведенное на примере Харбалахского разреза исследование показало, что: при прямых отгрузках из забоя часть угольной продукции в зимний период может поступать потребителям с повышенным (до 70–80 %) содержанием крупных кусков (более 300 мм) и большим содержанием пустой или высокозольной породы из-за разубоживания при ведении добычных работ. А угольная продукция, отгружаемая со складов разреза, будет иметь повышенное содержание мелких (менее 10 мм) классов крупности (более 45–47% от общего объёма) с также увеличенным (до 5–8%) уровнем разубоживания.
Для улучшения на разрезах центральной Якутии, включая Харбалахский, процессов управления качеством и снижения потерь угольной продукции в цепочках добычи и поставок потребителям может применяться ряд разработанных геотехнологических и организационных решений.
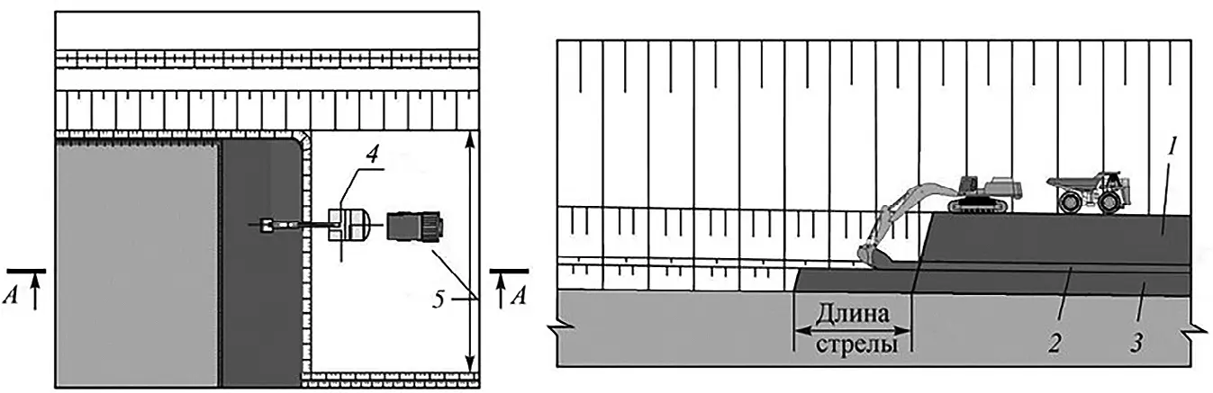
В частности, для снижения уровня засорения добываемого топлива пустыми породами целесообразно использовать разработанную технологическую схему раздельной выемки угля из сближенных пачек пластов (рис. 4), устройство для отделения угольной мелочи от кусков породы (полезная модель №129022).
Рис. 4 Технологическая схема ведения отработки пласта с породным прослоем: 1 – верхняя угольная пачка пласта; 2 – породный прослой; 3 – нижняя угольная пачка пласта; 4 – экскаватор; 5 – самосвал
Fig. 4 A process chart of mining a coal seam with a country rock interbed: 1 – the upper band in the seam; 2 – the country rock interbed; 3 – the lower band in the seam; 4 – an excavator; 5 – a dump truck
Для уменьшения количества образующихся в угле мелких классов крупности при складировании и хранении в период положительных температур, минимизации влияния окисления и выветривания, сохранения исходных качественных характеристик возможно задействование решений, связанных с использованием различных теплоизоляционных материалов для экранирования хранимого в штабелях угля (рис. 5, а), организацией сортировки топлива по крупности и его фасовки в мягкую тару (рис. 5, б).
Рис. 5 Схемы организации угольных потоков: а – с теплоизоляцией штабелей; б – сортировкой и тарированием угля в мягкие контейнеры
Fig. 5 Schematic layouts for coal flow management: а – with thermal insulation of coal stock piles; б – with coal grading and packaging in soft containers
Заключение
На примере Харбалахского разреза показано, что из-за особенностей условий добычи и поставок угля предприятиями центральной Якутии потребителям его фактические потери по количеству могут превышать нормативные, а качественные, связанные в первую очередь с изменением гранулометрического состава, учитываются не в полной мере, ухудшая обеспечение угольной продукцией труднодоступных районов.
Полученные оценки особенностей изменения структуры гранулометрического состава угольной продукции при добыче, хранении и поставках потребителям центральной Якутии свидетельствуют о значительном увеличении в ней выхода мелких классов крупности, снижающих эффективность слоевого сжигания топлива, и высоком засорении его породными составляющими, что определяет потребность совершенствования процесса управления качеством на разрезах.
Предложенные геотехнологические и организационные решения, направленные на повышение сохранности и пригодности угольной продукции к использованию в условиях Крайнего Севера, позволяют перейти к её использованию потребителями с меньшим уровнем негативных изменений после отгрузки из забоев.
Список литературы
1. Шакиров В.А., Тугузова Т.Ф., Музычук Р.И. Проблемы электроснабжения в коммунально-бытовом секторе Арктической зоны Республики Саха (Якутия). Арктика: экология и экономика. 2020;(4):106–116. https://doi.org/10.25283/2223-4594-2020-4-106-116Shakirov V.A., Tuguzova T.F., Muzychuk R.I. Problems of power supply in the public utility sector of the Arctic zone of the Republic of Sakha (Yakutia). Arctic: Ecology and Economy. 2020;(4):106–116. (In Russ.) https://doi.org/10.25283/2223-4594-2020-4-106-116
2. Гаврилов В.Л., Ермаков С.А., Хосоев Д.В. Оценка состояния открытой разработки угольных месторождений центральной и северной Якутии. Горный информационно-аналитический бюллетень. 2010;(11):29–36.Gavrilov V.L., Ermakov S.A., Hosoev D.V. An assessment of the state of surface coal mining in central and northern Yakutia. Mining Informational and Analytical Bulletin. 2010;(11):29–36. (In Russ.)
3. Заровняев Б.Н. Совершенствование сплошных систем разработки в условиях криолитозоны. Вестник Кузбасского государственного технического университета. 2021;(6):63–69. https://doi.org/10.26730/1999-4125-2021-6-63-69Zarovnyaev B.N. Impruvement of continuous development systems in permafrost. Bulletin of the Kuzbass State Technical University. 2021;(6):63–69. (In Russ.) https://doi.org/10.26730/1999-4125-2021-6-63-69
4. Захаров В.Е., Козлов А.Н., Донской И.Г. Моделирование изменения теплоты сгорания угля при транспортировке до районов Крайнего Севера, на примере Республики Саха (Якутия). Известия Российской академии наук. Энергетика. 2018;(6):132–141. https://doi.org/10.31857/S000233100003526-2Zakharov V.E., Kozlov A.N., Donskoy I.G. Modeling of changes in the heating value of coal transported to Russia’s far north regions on the example of the republic of Sakha (Yakutia). Izvestiia Rossiiskoi Akademii Nauk. Energetika. 2018;(6):132–141. (In Russ.) https://doi.org/10.31857/S000233100003526-2
5. Гаврилов В.Л., Федоров В.И. Особенности управления качеством угля на малых разрезах Крайнего Севера. Фундаментальные и прикладные вопросы горных наук. 2022;9(3):89–95.Gavrilov V.L., Fedorov V.I. Features of coal quality management in small open-pit mines of the Far North. Journal of Fundamental and Applied Mining Science. 2022;9(3):89–95. (In Russ.)
6. Фрейдина Е.В., Ботвинник А.А., Дворникова А.Н. Системное управление качеством углей при открытой разработке месторождений Сибири. Новосибирск: Наука; 2019. 263 с.
7. Никитенко С.М., Гоосен Е.В., Кавкаева О. Моделирование гибких цепочек добавленной стоимости на основе «чистых» технологий переработки угля. Горная промышленность. 2023;(S2):126–134. https://doi.org/10.30686/1609-9192-2023-S2-126-134Nikitenko S.M., Goosen E.V., Kavkaeva O. Modeling of flexible value chains based on clean coal processing technologies. Russian Mining Industry. 2023;(S2):126–134. (In Russ.) https://doi.org/10.30686/1609-9192-2023-S1-126-134
8. Батугина Н.С., Гаврилов В.Л., Ткач С.М. Принципы ресурсосберегающего управления качеством при поставках угля в труднодоступные районы Северо-Востока России. Природные ресурсы Арктики и Субарктики. 2019;24(2):64–73. https://doi.org/10.31242/2618-9712-2019-24-2-6Batugina N.S., Gavrilov V.L., Tkach S.M. Principles of resource-saving management of quality for coal supply to the hard-toreach regions of the North-East of Russia. Arctic and Subarctic Natural Resources. 2019;24(2):64–73. (In Russ.) https://doi.org/10.31242/2618-9712-2019-24-2-6
9. Freidina E.V., Botvinnik A.A., Dvornikova A.N. Coal quality control in the context of international standards ISO 9000–2000. Journal of Mining Science. 2008;44(6):585–599. https://doi.org/10.1007/s10913-008-0066-2
10. Кампанелла Дж. (ред.). Экономика качества : основные принципы и их применение [пер. с англ. А. Раскина]. М.: Стандарты и качество; 2005. 230 с.
11. Ткач С.М. (ред.). Геотехнологии открытой добычи минерального сырья на месторождениях со сложными горногеологическими условиями. Новосибирск: Гео; 2013. 307 с.
12. Мирошниченко Д.В., Десна Н.А., Кафтан Ю.С. Исследование процесса окисления углей в промышленных условиях. Сообщение 4. Температура угля в штабеле. Кокс и химия. 2015;(2):2–8. Miroshnichenko D.V., Desna N.A., Kaftan Y.S. Oxidation of coal in industrial conditions. 4. coal temperature in heap storage. Coke and Chemistry. 2015;58(2):43–48. https://doi.org/10.3103/S1068364X15020027
13. Nikolenko P.V., Epshtein S.A., Shkuratnik V.L., Anufrenkova P.S. Experimental study of coal fracture dynamics under the influence of cyclic freezing – thawing using shear elastic waves. International Journal of Coal Science & Technology. 2021;8(4):562–574. https://doi.org/10.1007/s40789-020-00352-x
14. Zhai C., Wu S., Liu S., Qin L., Xu J Experimental study on coal pore structure deterioration under freeze – thaw cycles. Environmental Earth Sciences. 2017;76(15):507. https://doi.org/10.1007/s12665-017-6829-9










